Seite
schließen
Wohnhausprojekt
Was mit den ersten
Gesprächen im Jahr 1991 im Pfarrzentrum Tulln-St. Severin begonnen
hat, wird nach Jahren des Engagements verbunden mit Hoffnungen und Enttäuschungen
im Jahr 2003 vollendet werden. Nach der Entscheidung der Caritas im Jahr
2002 in Tulln das von der Stadtgemeinde Tulln zur Verfügung gestellte
Grundstück anzunehmen und das Wohnhaus zu errichten, der Ausschreibung
des Projektes sowie der Vorstellung der Pläne begann die Vision Gestalt
anzunehmen. Im Frühjahr 2003 war dann der ersehnte Baubeginn und
bereits mit Ende des Jahres soll die Errichtung abgeschlossen sein, sodass
mit Jänner 2004 das Haus bezogen werden kann. Für viele behinderte
Menschen wird sich dann ein Traum der „eigenen Wohnung“ erfüllen.
Für viele, vor allem ältere Eltern hat sich die Sorge um ihr
Kind zum Guten gewendet.
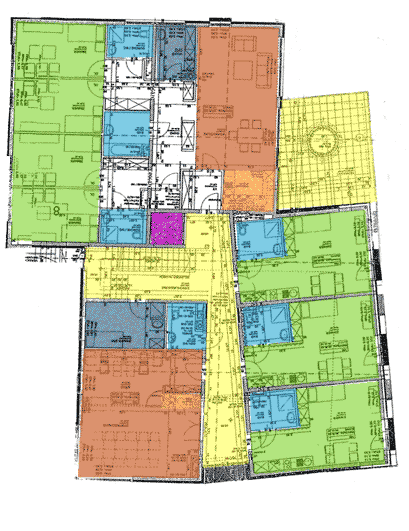
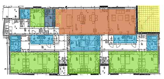
Das Wohnhaus ist
im Tullner Langenlebarnerviertel in der Prosl-Gasse gelegen. Es
wird auf dem ca. 2000m² großen Grundstück in zwei Objekten
ausgeführt.
Ein Objekt mit 8 Wohnplätzen für schwerst behinderte Menschen,
das ebenerdig ausgeführt wird, sowie ein Objekt – an der Vorderseite
zur Prosl-Gasse für weitere 16 Wohnplätze. In diesem Objekt
sind neben den Einzelzimmern auch drei Einheiten für selbständigeres
Wohnen mit einem eigenen Küchenblock vorgesehen. Zwei der 24 Wohnplätze
sind für Kurzzeitunterbringungen gedacht.
 |
|
Westansicht
Objekt 2 |
Westansicht
Objekt 1 |
|
 |
|
 |
| Objekt 1, Erdgeschoß .................................. |
| |
|
|
| Objekt 1, Obergeschoß .................................. |
|
 |
| |
|
|
| Objekt 2, ebenerdig........................................ |
|
 |
| |
| Idee
und Geschichte |
| 1983 |
Die
Caritas St. Pölten errichtet in den Kellerräumen des
Landespensionistenheimes
„Theresia-Heim“ in Tulln eine Tageswerkstätte
für geistig behinderte Menschen. |
| |
|
| 1987 |
Die Pfarre
Tulln-St. Severin stellt der Caritas ein Grundstück für
den Bau eines
Tagesheimes zur Verfügung |
| |
|
| 1988 |
Die Caritas
errichtet und eröffnet das Tagesheim St. Severin mit einer
Gesamtkapazität
von ca. 50 zu betreuenden Menschen. |
| |
|
| 1990 |
Aus Treffen
von betroffenen Eltern und engagierten Menschen im Pfarrzentrum
St.
Severin entsteht der Verein „Miteinander leben“,
dessen erster Obmann Landesrat Josef Mohnl ist. |
| |
|
| 1991 |
Die ersten
Projekte entstehen. Die Herausgabe einer vierteljährlichen
Informations-
schrift „miteinander leben“, Informationstreffen
und die ersten Gespräche für eine Wohngemeinschaft
für behinderte Menschen in Tulln. Das erste Treffen dazu
gibt es am 27. Mai. Es folgen Gespräche mit den Architekten
Dr. DI Franz und DI Monika Binder und die Zusage, den Verein
Miteinander leben bei der Planung zu unterstützen. Ein
erste Projektstudie entsteht. Mit dem Tod von LR Mohnl erleidet
der Verein einen sehr großen Verlust. Weitere Gespräche
erfolgen mit LHStv. Höger und dem Tullner Bürgermeister
GenDir. Edwin Pircher mit dem Ersuchen an die Stadtgemeinde
Tulln, ein Grundstück im Baurechtswege zur Verfügung
zu stellen. |
| |
|
| 1992 |
Es gibt
die ersten konkreten Gespräche mit der Caritas St. Pölten.
Doch diese will nur
ein Großprojekt unterstützen, ein größeres
Grundstück sei notwendig. Auf einen neu-erlichen Antrag
antwortet die Stadtgemeinde, dass durch die Vergabe der Grundstücke
auf den „Lorenzgründen“ kein größeres
zur Verfügung sei und die Planung auf das kleinere Grundstück
abzustimmen sei. Für dieses Grundstück sei auch die
Einräumung eines Baurechtes vorgesehen. |
| |
|
| 1995 |
Die Caritas
kann aus finanziellen Gründen kein Wohnheim mehr errichten.
Das erste
Projekt in Tulln war somit nicht zu verwirklichen. Auch das
Grundstück wird infolge anderweitig vergeben. |
| |
|
| 1996 |
Nach einem
Jahr Pause gibt es erneut wieder Gespräche über ein
„Wohnheimprojekt“. |
| |
|
| 1997 |
Eine Gruppe
von betroffenen Eltern findet sich und es kommt zu einem ersten
konkreten Gespräch, bei dem der Verein „Miteinander
leben“ seine Unterstützung zusagt. In einem Brief
gibt es eine Absichtserklärung seitens des Direktors der
Caritas, Mag. Schuhböck, ein von einem Verein errichtetes
Wohnheim zu führen. |
| |
|
| 1998 |
Durchführung
einer Projektstudie. Überreichung an die Stadtgemeinde
Tulln, das Land
NÖ und die Caritas St. Pölten. |
| |
|
| 1999 |
Zusammenarbeit
mit der Wohnbaufirma Heimat Österreich, Grundstücksverhandlungen.
Behörden- und Elterngespräche. Übereinkommen
zwischen Caritas St. Pölten, Heimat Österreich und
dem Verein Miteinander leben in den nächsten Jahren ein
Wohnhaus in Tulln zu errichten. Ende des Jahres Zusage von Mitteln
durch das Land NÖ für das Wohnhausprojekt. Stadtgemeinde
Tulln bringt ein Grundstück von ca. 2000 m2 in ein größeres
zu erwerbendes Grundstück mit ein. |
| |
|
| 2000 |
Treffen
mit konkretem Inhalt zwischen den Verantwortlichen der Caritas
und dem Verein Miteinander leben im Caritas Tagesheim Tulln.
|
| |
|
| 2001 |
Konkretisierung
des Projektes und Entscheidung über Wohnhauskonzept durch
die Caritas. 2002 soll mit dem Bau begonnen werden. Eine Vision
beginnt Wirklichkeit zu werden.
2002 Weitere Gespräche. Die Caritas entscheidet selbst
das Wohnhaus zu errichten. Archtitektenbüro wird mit Planung
beauftragt. Im Juli werden bei einem Elterngespräch die
Pläne vorgestellt. Auf Grund von Anrainereinsprüchen
kommt es zu Verzögerungen beim Baubeginn. |
| |
|
| 2003 |
Im Frühjahr
ist Baubeginn, das Ziel der Errichtung eines Wohnhauses für
Menschen mit Behinderungen erreicht.
|
|
[ nach
oben ]
|